Wie unsere Räume klingen und schwingen - Die Harmonie der Proportionen (Online-Seminar)

Wie unsere Räume klingen und schwingen - Die Harmonie der Proportionen (Online-Seminar)

Montag, 20. Oktober 2025, 19 - 21 Uhr
Online-Plattform Zoom (inkl. Videoaufzeichnung)
Leitung: Oliver Keil (Landschaftsarchitekt, Naturcoach & Geomant)

Jede Form, jeder Raum und jedes Bauwerk trägt eine innere Ordnung in sich – eine Proportion, die bewusst gewählt oder zufällig entstanden sein kann. Dieses Online-Seminar lädt dazu ein, die unsichtbare Harmonie dahinter zu entdecken.

Neue Perspektiven auf Architektur,  Landschaftsarchitektur und Räume!

Inhalte u.a.

  • Schöpferimpuls & Raumwirkung
    Jeder Raum spielt seine eigene Musik

  • Die drei Grundtypen der Proportionierung
    Quadratur – Triangulatur – Goldener Schnitt: ihre Konstruktion, ihre Anwendung in Architektur und Kunst, ihre Wirkung auf den Menschen

  • Raumstimmung und Proportion
    Über Pythagoras zu den Intervallen der Musik

  • Proportionen in der Praxis

 

Anleitung

Das Online-Seminar findet auf Zoom statt. Nach Anmeldung und Bezahlung wird der Zoom-Link per E-Mail ca. 3 Tage vor Veranstaltung zugesandt. Bitte überprüfe auch deinen Spam-Ordner, falls du die E-Mail nicht finden kannst. Bitte melde dich schon 5 - 10 Minuten früher an, damit wir pünktlich starten können. Allen Teilnehmern wird innerhalb von einer Woche nach der Veranstaltung eine Videoaufzeichnung zugesandt, auch wenn du nicht live dabei sein konntest.

 

Übrigens...

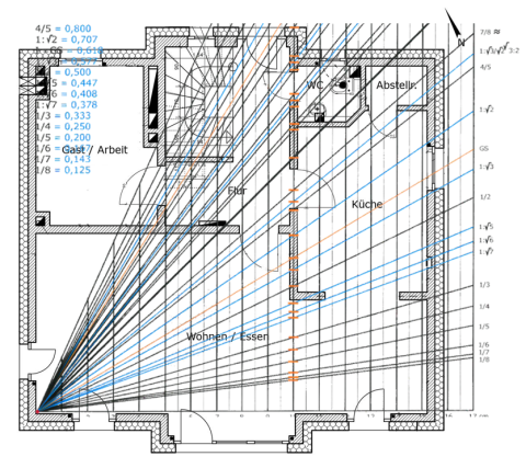
Grundriss Proportionen BeispielbildIn unserem Praxis-Seminar Maß, Zahl & Proportion - Heilige Geometrie in der Anwendung tauchen wir noch tiefer ein und lernen die praktische Anwendung der heiligen Geometrie, Proportionskunde, die Wirkung von Maßsystemen und Zahlenmystik.

Termin: 13. - 16. November 2025 in München

Informationen zur Veranstaltung

Beginn der Veranstaltung 20.10.2025 19:00
Ende der Veranstaltung 20.10.2025 21:00
Einzelpreis 35,00 €
Veranstaltungskategorien Online-Seminare, Seminare